A + B

architecture

Work

  • School and kindergarten
  • A creative district
  • Sport complex for the university
  • Narva-Jõesuu kindergarten
  • Villa near the sea
  • Reconstruction of the private house
  • Private house
  • Private house in Sweden
  • Visualisation of semi-detached house
  • 6x6 meter apartment
  • ECO shop
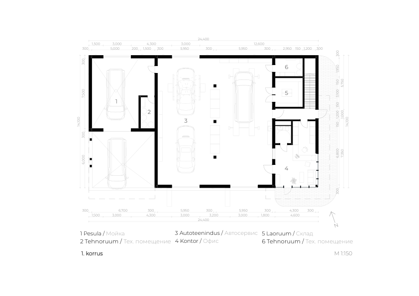
  • Car service centre
  • Urban space of the main street in Narva
  • Sketches throughout the years
  • Contact

A + B

architecture
Work
School and kindergarten A creative district Sport complex for the university Narva-Jõesuu kindergarten Villa near the sea Reconstruction of the private house Private house Private house in Sweden Visualisation of semi-detached house 6x6 meter apartment ECO shop Car service centre Urban space of the main street in Narva Sketches throughout the years
Contact

Car service centre

<p>In need of repairing your car? First of all you need to build your own car service...</p>
Image Image Image Image Image Image Image Image Image Image
© 2025 Copyright by A+B OÜ